ARCHITECTURE

URBANISME

DESIGN

AGENCE

EQUIPE

MON PROJET

CONTACT

ENTREPONT

COROLLES

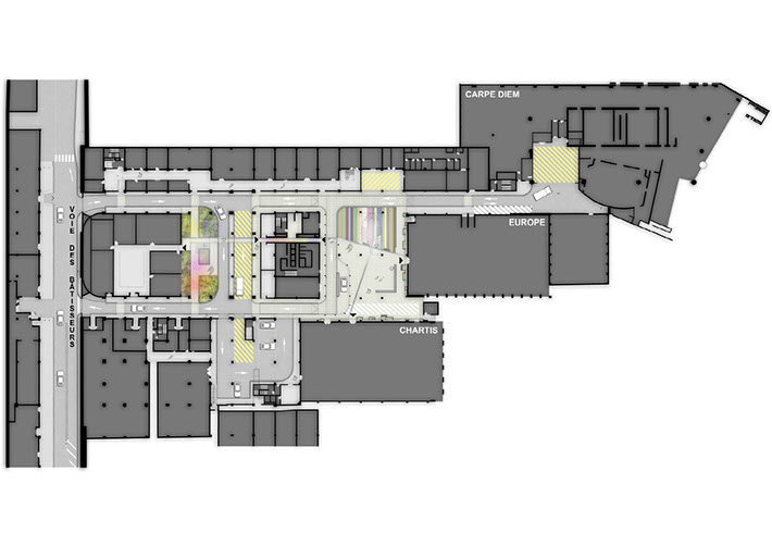
REQUALIFICATION ET VALORISATION DE L’ENTREPONT COROLLES À LA DÉFENSE

 

Au pied des tours Europe, Blanche, et Carpe Diem, l’entrepont Corolles est un espace sous dalle, longtemps délaissé, qui constitue un premier accès à La Défense pour de nombreux usagers, et plus spécifiquement pour les usagers des tours. Le projet de requalification s’est attaché à lui redonner des qualités d’usage plus significatives, un caractère plus fonctionnel, de créer une ambiance agréable, de gagner en confort et en sécurité. Le percement de la dalle a permis de mettre en lien le square implanté en surface et l’espace sous dalle, en créant des espaces paysagers de grande qualité. Un jardin tropical est ainsi développé en sous-sol et le square est entièrement réaménagé. Ce dernier accueille désormais de nouveaux cheminements, permettant une déambulation plus aisée, ainsi que plusieurs excroissances vitrées, ‘les diamants’, nourrissant ainsi en luminosité l’espace souterrain. Les usagers peuvent désormais s’approprier réellement cette spatialité innovante, dans le cadre de leurs déplacements ou autre pauses déjeuner.

 INFORMATIONS

 

Localité:

La Défense / Courbevoie

Hauts-de-Seine [92]

 

Calendrier:

Livré en Juillet 2015

 

Mission:

Maitrise d’œuvre

 

Maitrise d’ouvrage:

[publique] DEFACTO

 

Maitrise d’œuvre:

[Mandataire]

+ Paul Nadreau chef de projet

[Architecte – Urbaniste]

+ Grontmij [BET]

+ SLG Paysage [Paysagistes]

+ Luminocité [Eclairagistes]

 

Superficie:

5 900 m²